Fulltextové vyhledávání

Drobečková navigace

Úvod > O obci > Aktuality > Pronájem nebytového prostoru v přízemí bytového domu

Pronájem nebytového prostoru v přízemí bytového domu



Datum konání:
14. 4. 2026
Datum ukončení:
15. 5. 2026

Obec Štěpánovice (PSČ 373 73) nabízí k pronájmu nebytový prostor o celkové výměře 51,5 m², situovaný v přízemí bytového domu. 

Požadavky: Osobní služby: Cílené na člověka (kadeřnictví, vzdělávání, zdravotnictví, sociální služby, masáže apod.), které se v obci nevyskytují nebo jsou zde nedostatkové.
Neakceptujeme jakékoli kanceláře. 

Při službě nesmí obtěžovat obyvatele domu zejména hluk, hlukové, impulzní rázy a různé obtěžující činnosti. 

Obec si vyhrazuje záměr pronájmu bez uvedení důvodu zrušit.

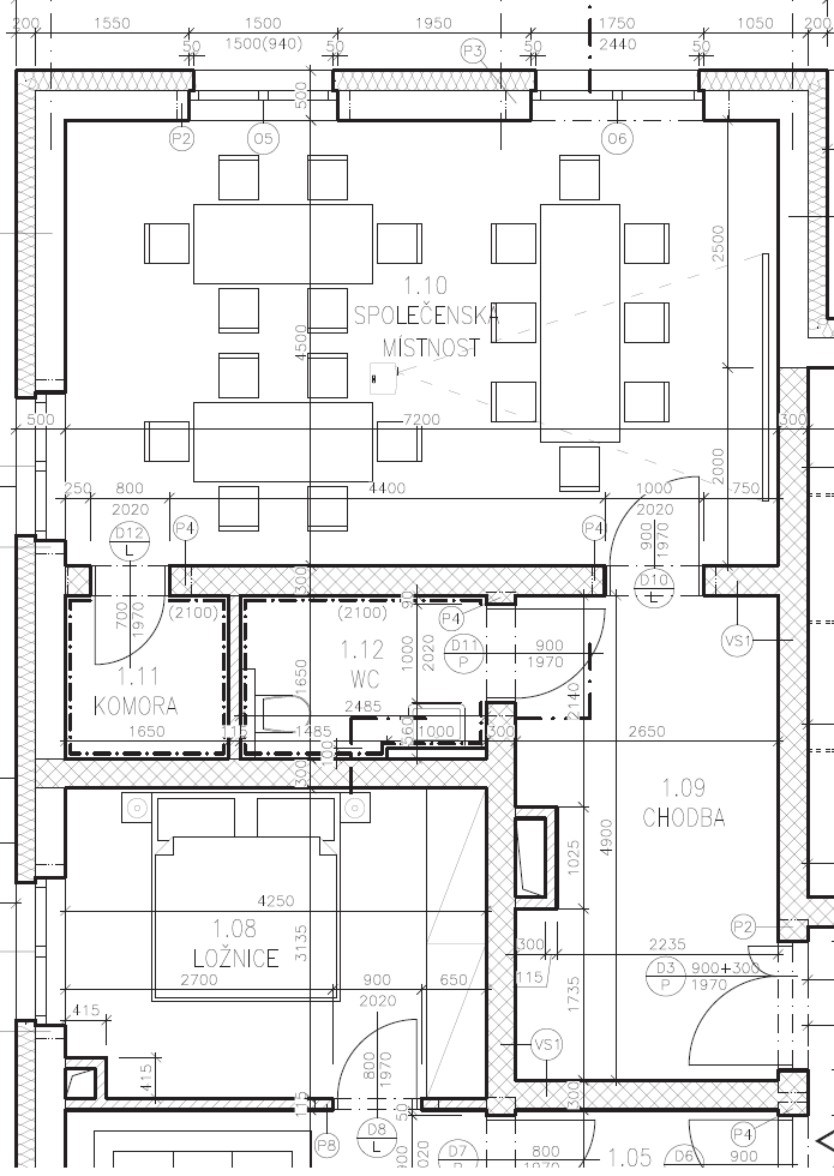
Dispozice: 

  • chodba 12,5m2
  • hlavní místnost (1.10) 32,4m2
  • komora 2,7m2
  • WC 3,9m2
    pudorys nebytoveho prostoru.jpg

Další informace: fotografie pronajímaného nebytového prostoru zde

  • snadný přístup z přízemí 
  • možnost úprav po dohodě 
  • vhodné pro dlouhodobý pronájem 

Podmínky pronájmu: 

  • Minimální nabídková cena: 6 000 Kč / měsíc
  • výběr nájemce proběhne obálkovou metodou, přičemž kromě výše nabídkové ceny bude zohledněn také přínos nabízených služeb pro obyvatele obce (o přínosu pro obyvatele rozhodne usnesení zastupitelstva)
  • energie budou přepsány na nájemce nebo účtovány dle skutečné spotřeby

Postup pro zájemce: 

Lhůta pro podání nabídek:  15.5.2026 do 12.hod.

Nabídky v zapečetěné obálce označené 
„NEOTVÍRAT – PRONÁJEM NEBYTOVÉHO PROSTORU“ 
doručte na adresu: 

Obec Štěpánovice 
Vlkovická 154 
373 73 Štěpánovice